in , ,

The Hegeman Residence by Cook + Fox

Hegeman Cook + Fox

Project: The Hegeman
Designed by Cook + Fox
Client: Common Ground Comunities 
Size: 64 469 sqf 
Location: Brooklyn, New York, USA 
Website: www.cookplusfox.com
The Hegeman project in Brooklyn is work of Cook + Fox, designed with efficient energy performance in mind:

Hegeman Cook + FoxHegeman Cook + FoxHegeman Cook + FoxHegeman Cook + FoxHegeman Cook + Fox

About the Project:

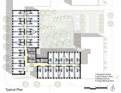
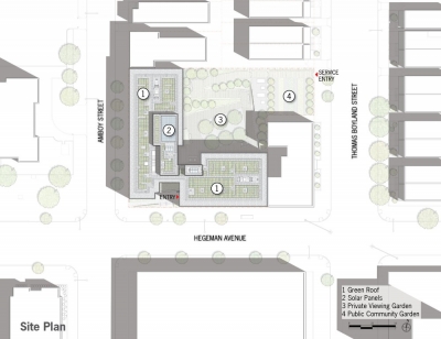
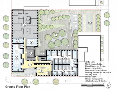
The Hegeman Residence is on the site of a former parking lot, filling the gap between the street wall and existing residences.  It adds residential real estate and street life to the context and respects the local architecture.  The modest six-story building is restrained in its planning, height and massing.  The architects used textural articulations in the facade to add visual life to the building.  The added depth to the brick facade is “thoughtful yet economical” and adds an elegance to the building.  Large windows frame the single entrance to the building along Hegeman Avenue.  Visual connections between the street and interior courtyard create a welcoming entrance that is emphasized by the plants and green space within the building.

The Hegeman Residence is part of Common Ground’s Green Campaign, emphasizing healthy living through health and indoor air quality, restorative and biophilic design, and best practices to save tenants money on energy bills.   The tenants are provided with views of green spaces and access to natural daylight, even in below-grade office spaces.  An inner courtyard provides an opportunity for the development of urban farms and gives a protected space for residents of all ages to enjoy the landscape.

The building is designed with efficient energy performance in mind:  entry-activated control systems and individual room-metering capabilities give control over energy usage. Infrastructure has been placed for a future co-generation system, as well.  Approximately 3,400 square feet of greenery on the roof cool the building and handles storm-water run off from the site.  Solar panels are also located on the roof for exterior lighting requirements.  Individual units are finished with durable, non-toxic materials, designed to save energy and water.  These measures may earn the building an anticipated LEED Silver certification.

Source ArchDaily. *

Apartment in Warsaw by Widawscy Studio Architektury

Felted by Dana Bachar