in , ,

PH3 House by T38 Studio

Ph3 House T38 Studio

Ph3 House T38 Studio

Project: Ph3 House
Designed by T38 studio + Pablo Casals-Aguirre
Project Team: María José López, Alfonso Medina, Pablo Casals-Aguirre, Mauricio Kuri, Oscar González
Collaborators: Lucía Arroyo, Alina Castañeda, Sara Díaz
Site surface: 5 200 ft2
Built surface: 5 100 ft2
Location: México, Tijuana, Baja California
Website: www.t38studio.com
Photographs: Alfonso Medina, Oscar Gonzalez, Alfredo Zertuche
T38 Studio is sharing with us their splendid design for a 5 100 ft house located in Tijuana, discover more of the Ph3 House after the jump:

Ph3 House T38 StudioPh3 House T38 StudioPh3 House T38 StudioPh3 House T38 StudioPh3 House T38 StudioPh3 House T38 StudioPh3 House T38 StudioPh3 House T38 StudioPh3 House T38 StudioPh3 House T38 StudioPh3 House T38 StudioPh3 House T38 StudioPh3 House T38 StudioPh3 House T38 StudioPh3 House T38 StudioPh3 House T38 StudioPh3 House T38 StudioPh3 House T38 StudioPh3 House T38 Studio

From the Architects:

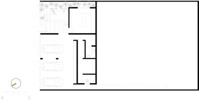
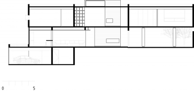
On an infill site, PH3 isolates itself from the context, a gated community in Tijuana mostly made up of california style mcmansions. It is a 3 layer structure that is set on the street side of the sloping site, shifting towards the back in both scale and openness. Closing itself to the street for privacy, the back of the house opens itself to the patio, creating indoor/outdoor living space.

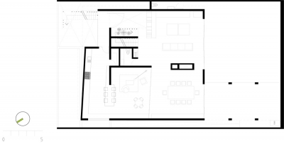
The program is arranged in an open floor layout on the second floor that contains the kitchen, family room and dining room. On the third floor, four bedrooms are arranged around a central social gathering space.

Debutorial Collections by 56thStudio

Grand Theatre D’Albi by Dominique Perrault Architecture